Podgląd oferty
Paweł Poćwiardowski |tel. 48 601 088 838 | email: [email protected]
| Numer oferty | NGK-LW-492 |
|---|---|
| miejscowość: | Szczecin |
| dzielnica - osiedle: | Niebuszewo |
| czynsz ofertowy PLN: | 5 500 |
| rodzaj lokalu użytkowego: | handlowo-usługowy |
| pow. całkowita [m²]: | 178,9500 |
| typ lokalu: | handlowo-usługowy |
| piętro: | 0 |
| czynsz dla spółdz./wspólnoty: | 2394,9000 |
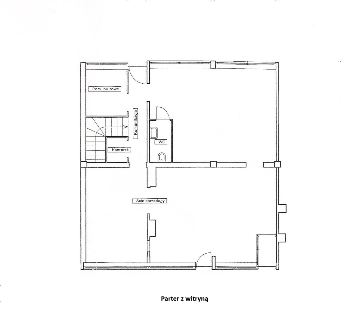
Do wynajęcia duży lokal użytkowy, dwupoziomowy (parter z witryną oraz pomieszczenia piwniczne) położony przy ul. Księcia Barnima III Wielkiego.Lokal położony jest w budynku handlowo-usługowym, posiada trzy wejścia: dwa od frontu, trzecie z tyłu budynku dla dostawców. Lokal składa się z dwunastu pomieszczeń:Parter: sala główna z witryną, magazyn, biuro, kantorek oraz wc. Łączna powierzchnia parteru 97,65 m2.Piwnica: cztery pomieszczenia magazynowe, zaplecze socjalne z kuchnią i pralnią oraz wc. Łączna powierzchnia piwnic 81,30 zł.Ogrzewanie z sieci miejskiej, ciepła woda - podgrzewacz elektryczny.Opłaty:- czynsz najmu 5 500,00 zł netto (do czynszu najmu należy doliczyć podatek VAT w stawce 23%),- czynsz do spółdzielni 2 394,90 zł netto (do czynszu najmu należy doliczyć podatek VAT w stawkach: 8% woda i kanalizacja, 23% eksploatacja, ogrzewanie oraz pozostałe składowe czynszu),- prąd wg zużycia.- kaucja dwumiesięczna.Obecnie w lokalu prowadzona jest działalność związana z sprzedażą artykułów spożywczych i monopolowych.Możliwość wynajęcia części lokalu: 48,95 m2 - parter z witryną i dodatkowym wejściem lub 130 m2 - parter z witryną, dodatkowym wejściem oraz piwnicą).Polecam.Oferta biura nieruchomości.Wynagrodzenie biura pokrywa każda ze stron transakcji.Aktualny cennik znajduje się na stronie biura NG Nieruchomości w zakładce „o nas”.
Powyższa oferta nieruchomości stanowi charakter informacyjny oraz zaproszenie do rokowań zgodnie z Art. 71 KC i nie stanowi oferty określonej w art 66 i następnych KC.
