Podgląd oferty
Paweł Poćwiardowski |tel. 48 601 088 838 | email: [email protected]
| Numer oferty | MTM-LS-6862 |
|---|---|
| miejscowość: | Szczecin |
| dzielnica - osiedle: | Centrum |
| cena ofertowa PLN: | 830 000 |
| rodzaj lokalu użytkowego: | biurowy |
| pow. całkowita [m²]: | 96,9900 |
| typ lokalu: | biurowy |
| piętro: | 0 |
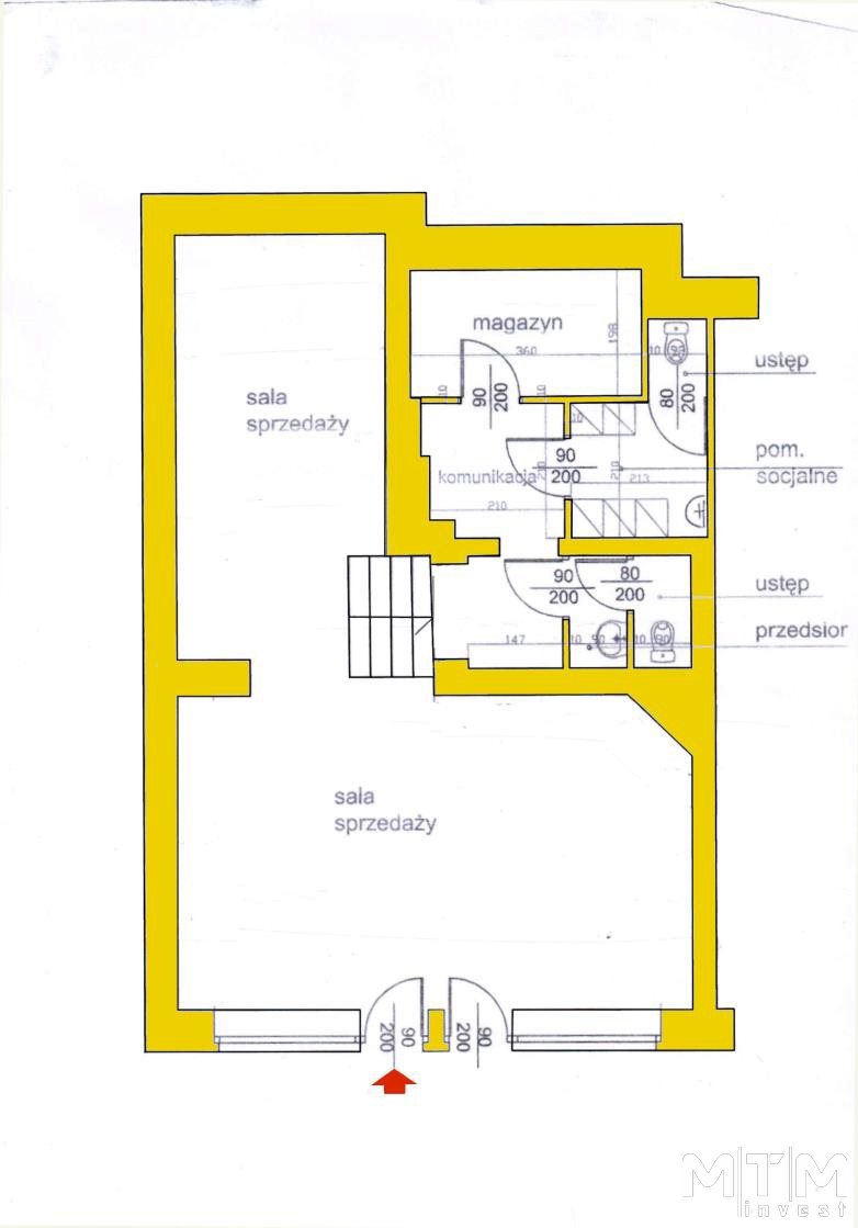
Mamy przyjemność zaprezentować ofertę wielofunkcyjnej powierzchni biurowo - usługowo - handlowej, która znajduje przy ruchliwej ulicy Bolesława Krzywoustego w Szczecinie, w pobliżu Bramy Portowej.Lokalizacja w samym Centrum Szczecina spełnia oczekiwania wielu branż, jest to miejsce z bardzo dużym ruchem pieszych. W tej chwili wokół tej lokalizacji stworzyło się zagłębie punktów handlowych i usługowych z branży ślubnej.Z powodzeniem można tutaj stworzyć prestiżową siedzibę firmy, sklep, show room , lokal gastronomiczny, gabinety medyczne, salon SPA / beauty , kancelarie czy nowoczesne biuro dla kreatywnej działalności - branży IT lub konsultingowo - szkoleniowej.Jest to jedna z bardziej rozpoznawalnych lokalizacji w Szczecinie.Lokal położony jest na parterze kamienicy po rewitalizacji. Jest to lokal stanowiący odrębną własność, z założoną księgą wieczystą. Powierzchnia 96,99 m 2 na którą składają się- Parter z wejściem z poziomu 0 ok 89,59 m 2- Piwnica ok 7,21 m2.Lokal posiada 2 wejścia od frontu Duże witryny wystawowe zapewniają dużo światła dziennego oraz dają możliwość wyeksponowania asortymentu i reklamy użytkownika Standard lokalu po remoncie, nie wymaga nakładów inwestycyjnych.Czynsz dla wspólnoty wynosi ok. 530 zł.Podana cena jest ceną bez VAT - transakcja zwolniona z VATu. Istnieje możliwość wynajęcia na warunkach do uzgodnienia.Zapraszamy do kontaktu i prezentacji.
Powyższa oferta nieruchomości stanowi charakter informacyjny oraz zaproszenie do rokowań zgodnie z Art. 71 KC i nie stanowi oferty określonej w art 66 i następnych KC.
